Kinderlou

https://houseplans.wilsondesignconstruction.com/web/image/product.template/313/image_1920?unique=8b4b178

Details: 4,429 Sq Ft, 5 Bedrooms, 4.5 Baths

5,600.00 5600.0 USD 5,600.00

0.00

Not Available For Sale

  • Plan Package

This combination does not exist.

Add to cart

Floor Plan Features of the Kinderlou


Specifications


Floors: 2
Bedrooms: 5
Bathrooms: 4.5
Foundation(s): Crawlspace

Square Feet


Main Floor: 3,069
Upper Floor: 1,360
Total Conditioned: 4,429

Dimensions


Width: 105'
Depth: 56'
Height: 33'

House Levels


Level Name Ceiling Heights
Main Floor 10'-0"

Construction


Wall Construction: 2x4
Exterior Finish: Brick

Features


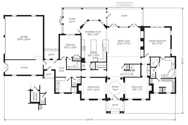
Kitchen: Island, Snack, Breakfast Nook
Master Suite: Tub, Double Sink, Shower, Private Toilet, Walk-in Closet
Additional: Fireplace, Loft, Porch, Bonus Room, Computer Room, Screened Porch

Garage


Type Size
Attached 2 - Stall

Description


This stately Southern design draws inspiration from Colonial, Georgian and other early-American architectural influences.

Inside, formal Living and Dining rooms flank the regal foyer, which leads back toward the casual living areas. The Family room includes fireplace feature wall and two sets of double doors to a rear covered porch. The Kitchen boasts a large island, snack-bar seating and a bayed Breakfast room. A spacious Master suite and second bedroom round out the main floor.

Upstairs, three large bedrooms have bath access and large walk-in closets. The design allows for an optional Rec room as well as a bonus space over the garage.

CAD File
Source drawing files of the plan. This package is best provided to a local design professional when customizing the plan with architect.

PDF Plan Set
Downloadable file of the complete drawing set. Required for customization or printing large number of sets for sub-contractors.

Construction Set
Five complete sets of construction plans, when building the house as-is or with minor field adjustments. This set is stamped with a copyright.

Pricing Set
Recommended for construction bids or pricing. Stamped "Not For Construction". The purchase price can be applied toward an upgrade to other packages of the same plan.

Planning Set
For planning purposes only and Stamped "Not for Construction." This set is ideal for planning modifications or verifying furniture sizes in rooms.